/ 27

Outstanding West Cornwall Hotel, Pub & Restaurant

Exeter, Cornwall, BS23 1UL

Asking Price £1,250,000
Tenure Freehold

Description

FREEHOLD. Stock at valuation in addition. No direct approach to be made to the business; please direct all communications through Charles Darrow. Viewing strictly by appointment only.

Location & Situation

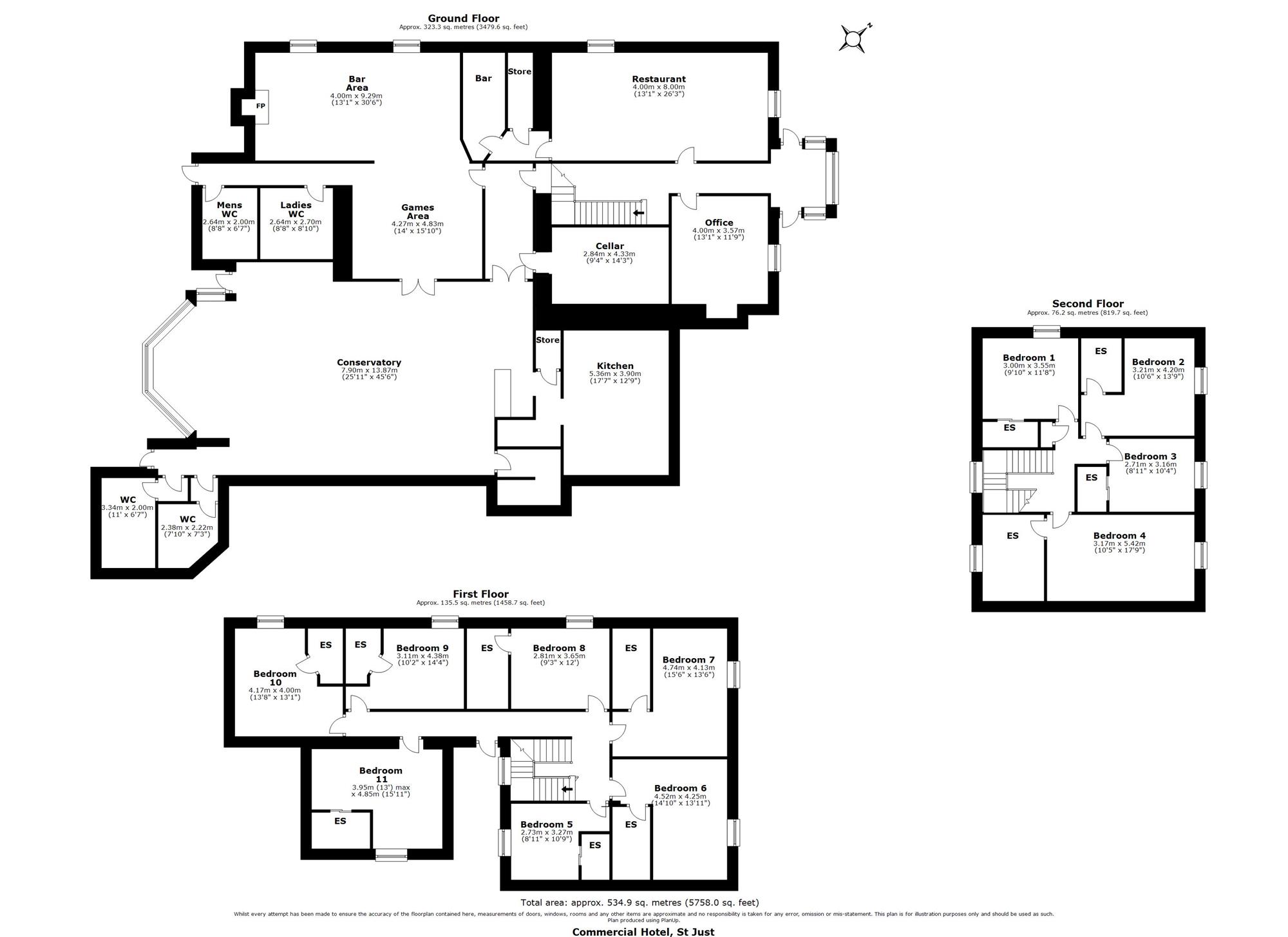
The Commercial Hotel is a Grade II Listed property with a rich history as a former coaching inn. This impressive three-storey, end-of-terrace building is constructed of traditional stone beneath a pitched tile roof, enhanced by thoughtfully added rear extensions. Among these additions are a vaulted function room, an enclosed patio, and beautifully landscaped garden areas, complete with a covered smoking area, which compliments the locals bar & residents lounge perfectly. To the rear of the property, a converted outbuilding offers three well-appointed, 2-bedroom cottages. These complement the hotel’s 11 tastefully presented ensuite letting bedrooms, the layout is highly versatile, with the cottages offering the potential for additional guest accommodation or private owner’s quarters, adapting to a range of operational needs.

Details

Property Type
Hotels

CharlesDarrow

View profile
Make an Enquiry

Free, no obligation enquiry

Enquire About This Business