/ 9

LONDON - BLANK CANVAS PUB/BAR OPPORTUNITY

Camberwell, London, SE5 9PU

Asking Price Leasehold Nil Premium
Leasehold Price £1
Tenure Leasehold

Description

LEASEHOLD NIL PREMIUM The Landlord will consider the creation of a new lease agreement on the following terms: - Fully repairing and insuring lease - For a term of 15 or 20 years - Inside Part II Landlord & Tenant Act 1954 - Annual rent £40,000 - Rent subject to 5 yearly review and annual RPI adjustments collared at 2.5%, capped at 5% - 6 month rental deposit, plus personal guarantors - Free of all trade ties All negotiation subject to covenant strength. An incoming party will be required to demonstrate sufficient funds to sustain their business model, and will need to demonstrate ingoing capital to cover the premium, rental deposits, stock, working capital and solicitor's fees as a minimum. Application form and business plan available upon request. The property is closed. Please direct all communications through Sidney Phillips. Viewing strictly by appointment only.

Location & Situation

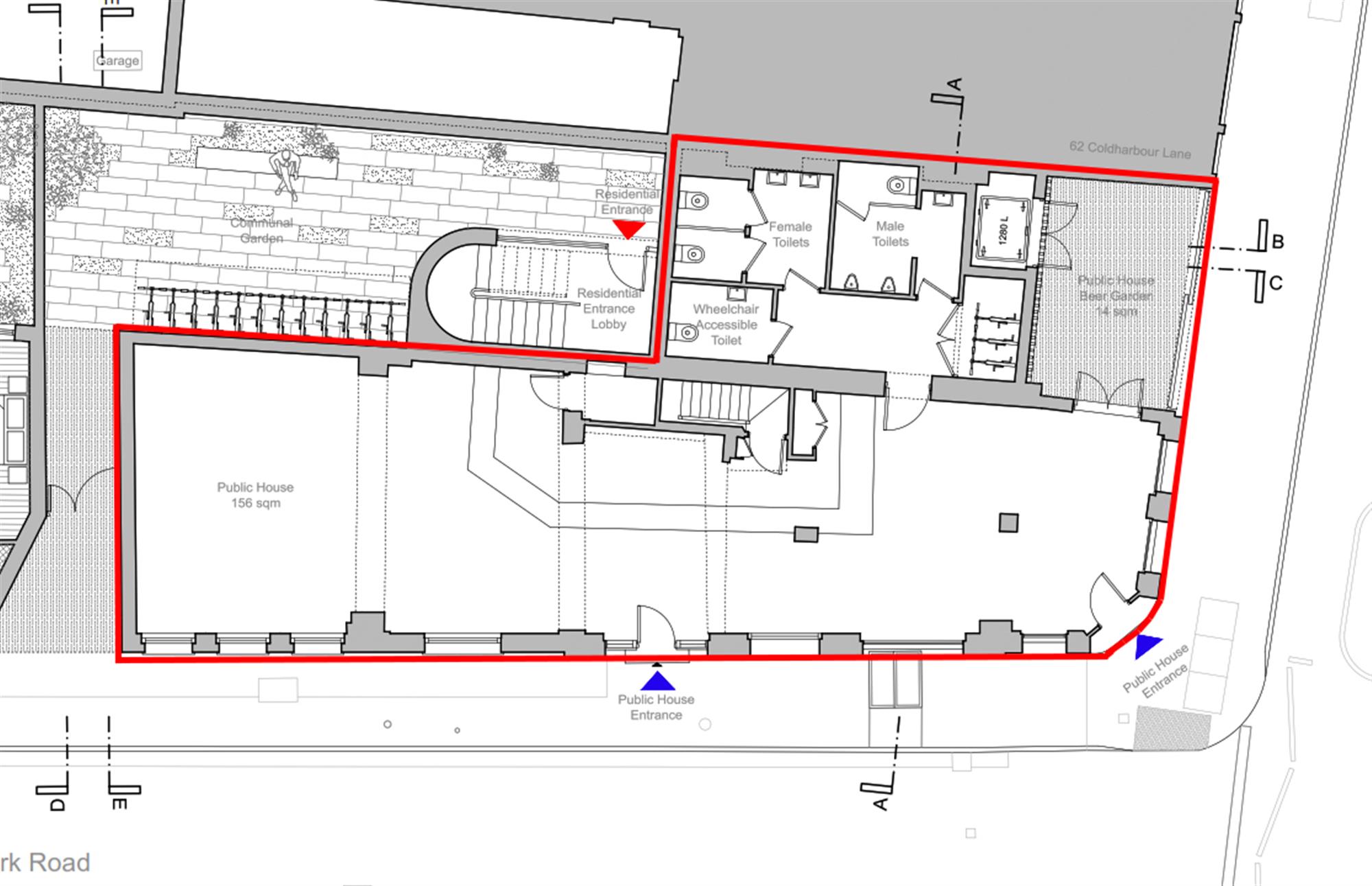
GROUND FLOOR Measuring in the region of 1,679 sq ft, comprising: - OPEN PLAN TRADE SPACE: Measuring approximately 1,300 sq ft. Suitable for kitchen installation. Entrance from Coldharbour Lane and Denmark Road. - ANCILLARY AREA: Suitable for WC and staff area (with capped services). BASEMENT - STORAGE: Divided into a number of rooms including barrel room. Delivery drop from Denmark Hill. (NB: The cellar is not stand-up height). EXTERNAL - FRONT PATIO - BIN STORE

Details

Property Type
Restaurant, Public House, Wine Bar

SidneyPhillips

View profile
Make an Enquiry

Free, no obligation enquiry

Enquire About This Business