/ 9

Convenient Town Centre Offices To Let

Newton Abbot, Devon, TQ12 1AF

Asking Price POA
Tenure Rent

Description

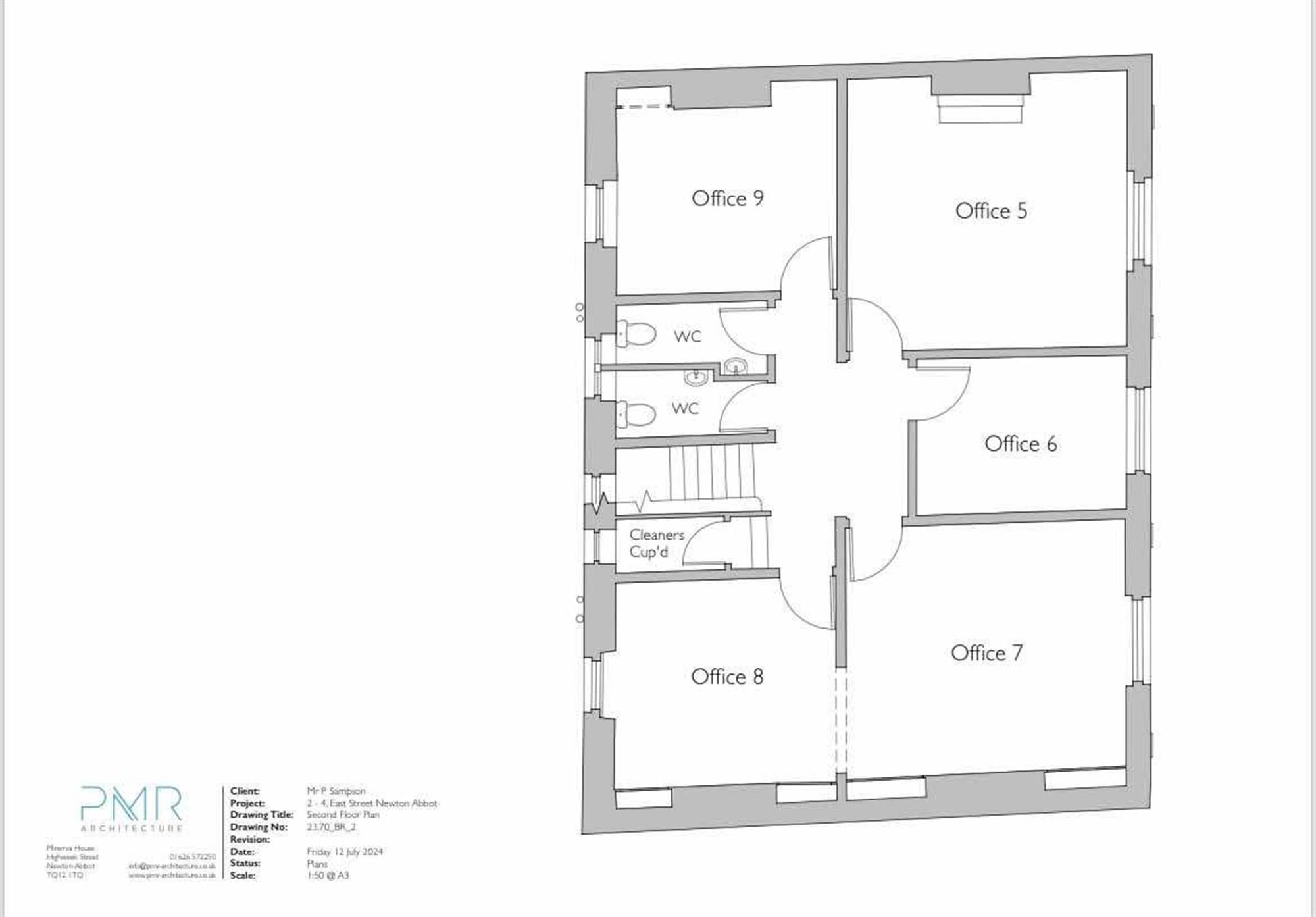
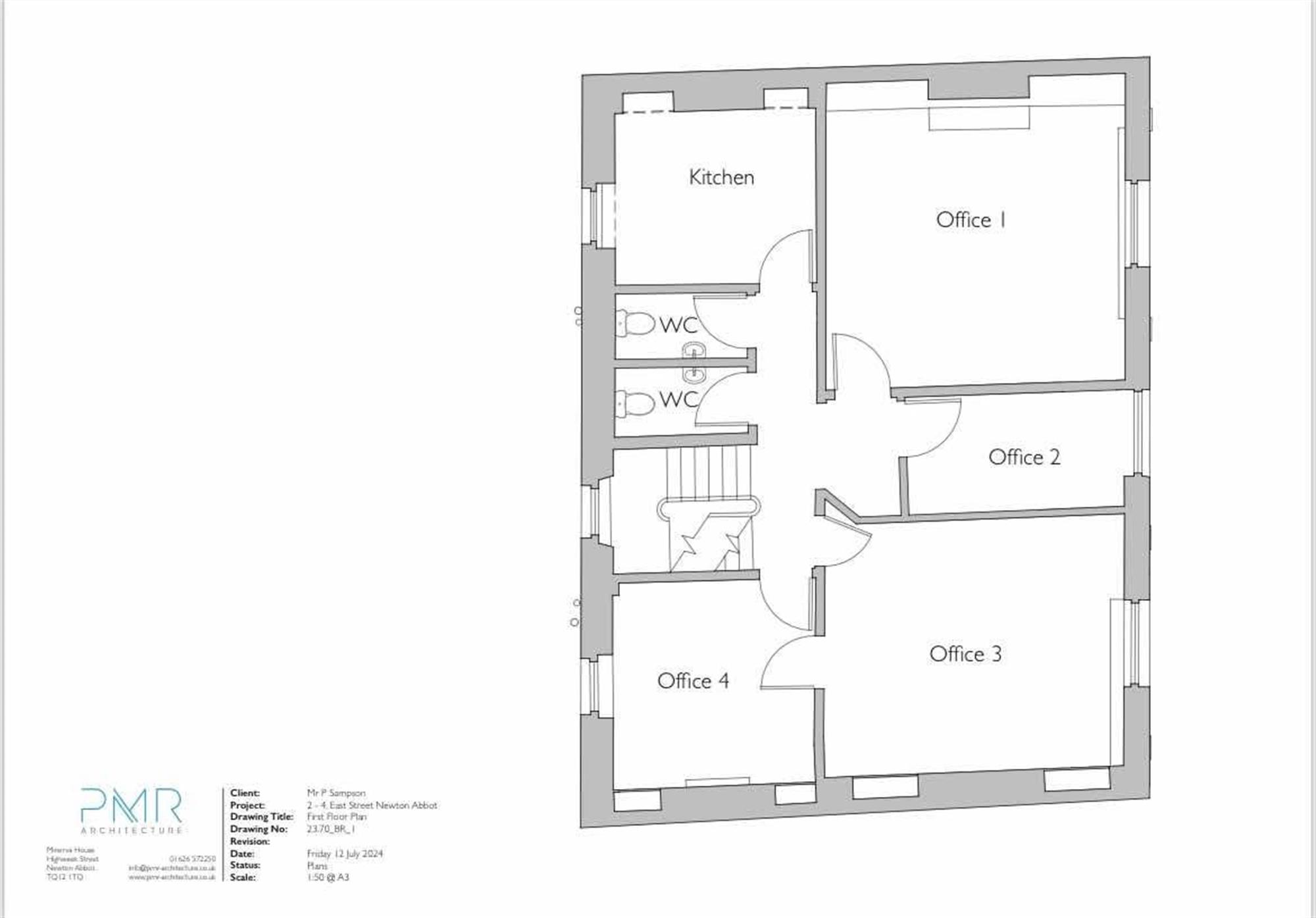
The remaining offices within 2-4 East Street are available to let immediately, with rates as follows: Office 1- 238 sq ft, front facing AVAILABLE- asking rent £400 PCM/ £4,800 Pa, Service charge £89 PCM/ £1,068 Pa Office 2- 88 sq ft, front facing LET Office 3 & 4 (arranged as a suite)- 326 sq ft, front and rear facing LET Office 5- 198 sq ft, front facing £350 PCM/ £4,200 Pa, Service charge £75 PCM/ £900 Pa office 6- 91 Sq ft, front facing LET Office 7 & 8 (arranged as a suite)- 320 sq ft, Front and rear facing LET Office 9- 114 sq ft, rear facing LET All offices rentals are subject to a small service charge, in addition to the rental, which includes all utilities, communal cleaning, maintenance, rates and high speed wifi. Landlords are flexible with lease terms, with the basis lease showing a 5 year lease with a midway break option. Landlords may seek a rental deposit (to be confirmed).

Location & Situation

2–4 East Street is a stunning and prominently positioned period building in the heart of Newton Abbot. Recently the subject of a comprehensive refurbishment, the property now offers two high-quality ground floor commercial retail units, with modern, well-appointed serviced office accommodation above. The upper floors have been thoughtfully converted to provide a range of individual office suites, ideal for small businesses, startups, or satellite teams. The space benefits from excellent shared facilities, including a contemporary communal kitchen, four well-maintained WCs, and access to high-speed internet throughout. Finished to a high standard, this beautifully restored building blends period charm with modern functionality, offering flexible and attractive space in a central and highly accessible location.

Details

Property Type
Office Space

CharlesDarrow

View profile
Make an Enquiry

Free, no obligation enquiry

Enquire About This Business