/ 28

Auction Lot: Unique Development/ Investment Property in Dartmouth

Dartmouth, Devon, TQ6 9NF

Asking Price £400,000
Tenure Freehold

Description

Freehold

Location & Situation

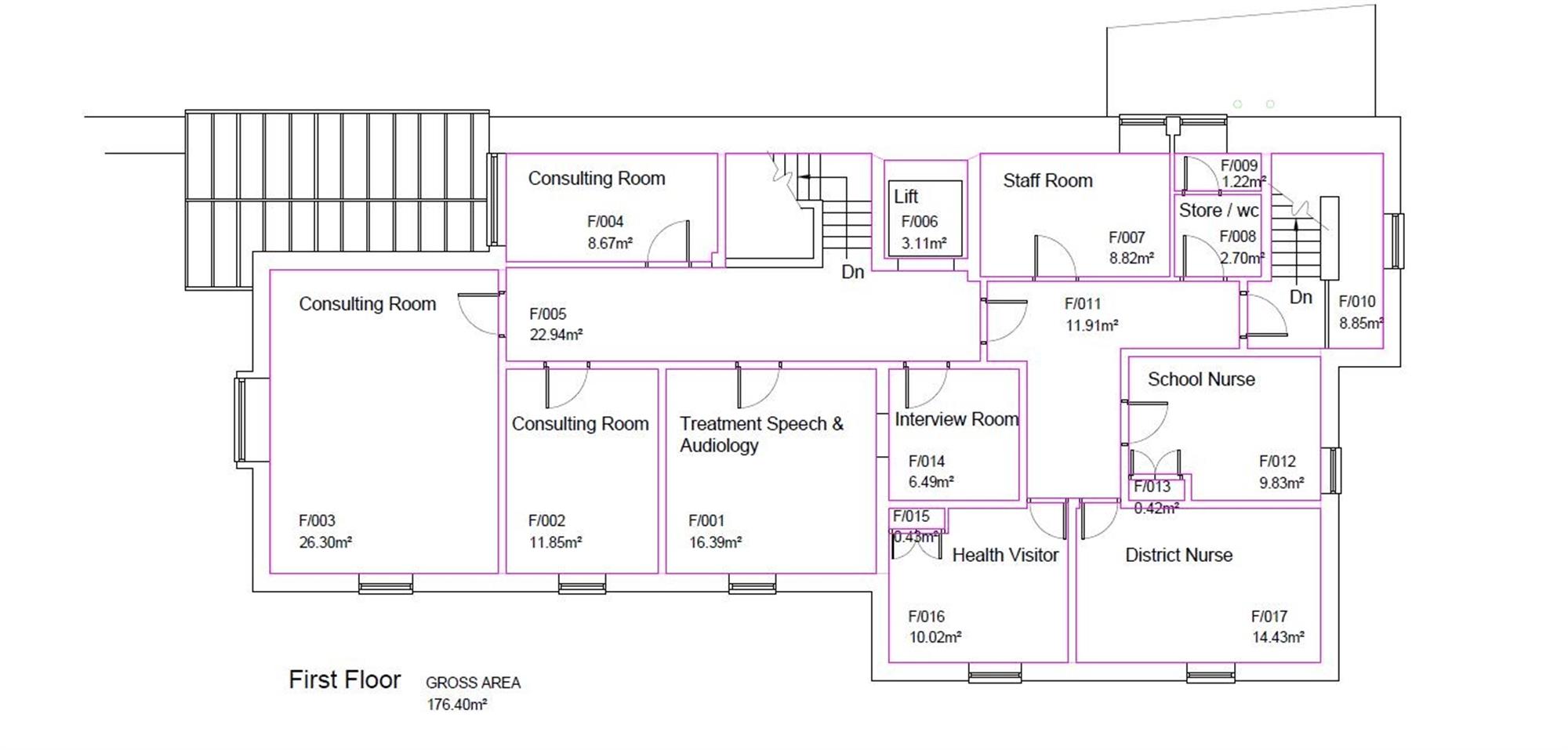
Situated at the junction of Mayors Avenue and Zion Place close to Dartmouth Harbour and the town centre amenities. The building is arranged across 2 floors with consulting and treatment rooms, waiting room, reception and office accommodation. There is a car park at the front of the building. Potential for a variety of commercial uses or conversion to residential, subject to the necessary consents. Watch the walkthrough video tour here: https://youtu.be/jiLK6Q1LTVA

Details

Property Type
Commercial Development

CharlesDarrow

View profile
Make an Enquiry

Free, no obligation enquiry

Enquire About This Business